Casa indipendente in vendita

Montelanico, Via La Forma - Forma
€ 135.000
4 locali 4 locali
96 Mq 96 Mq
1 bagno 1 bagno

Casa indipendente in vendita

Montelanico, Via La Forma - Forma

Descrizione annuncio

Casa indipendente immersa nel verde – Località San Marino, Via La FormaMONTELANICO (RM).

In una delle zone più riservate e suggestive del territorio di Montelanico, nella località di San Marino – Via La Forma, proponiamo in vendita una casa indipendente che incarna perfettamente il fascino e la tranquillità della vita di campagna.
La proprietà si sviluppa su un unico livello per una superficie complessiva di circa 96 mq, circondata da un terreno privato di circa 2.000 mq, che abbraccia la casa con un’atmosfera di pace e silenzio, regalando una sensazione di libertà e benessere.

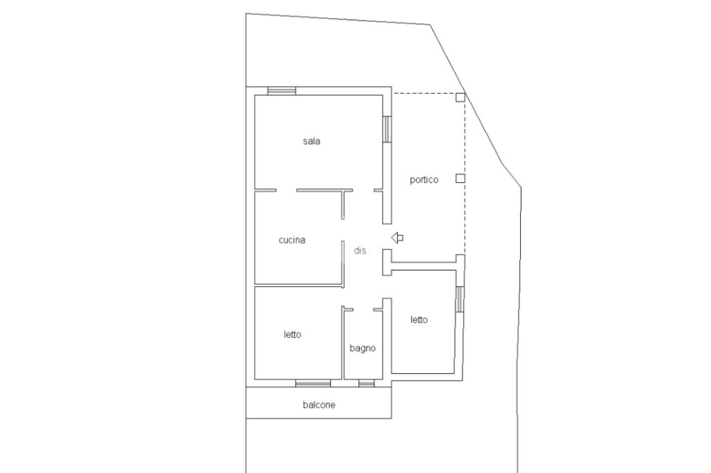
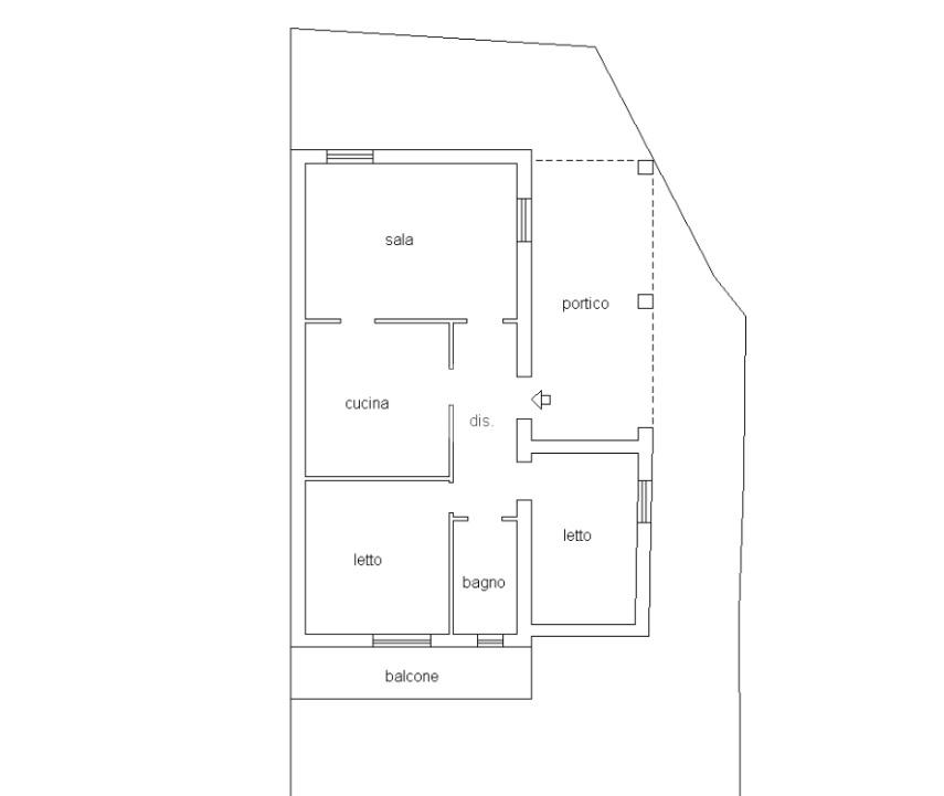
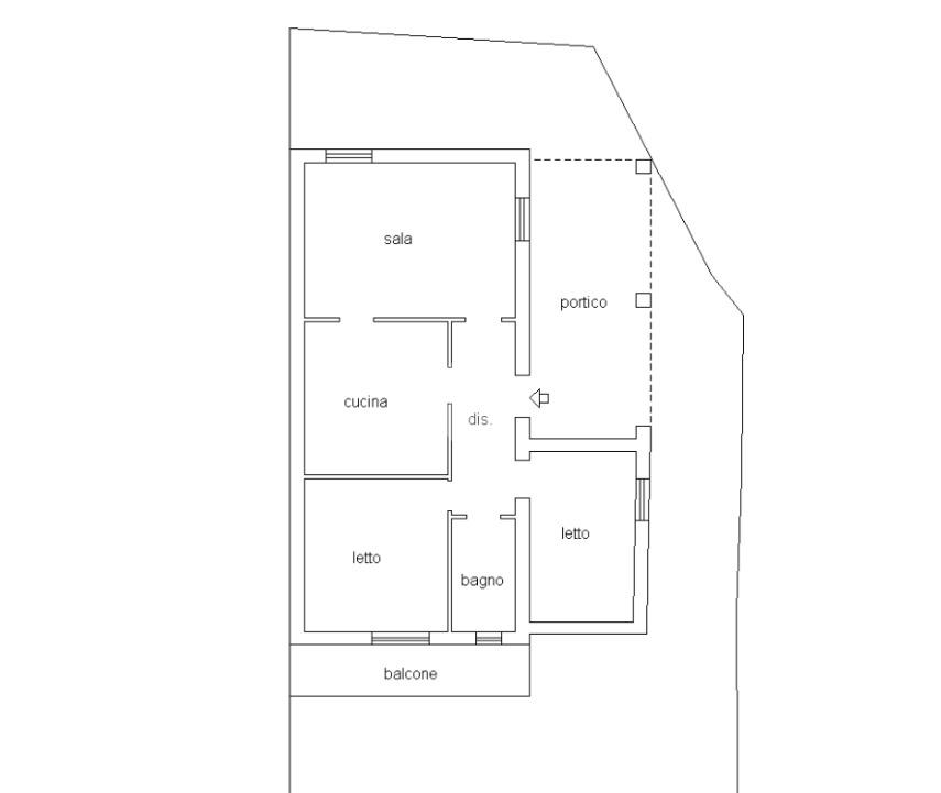
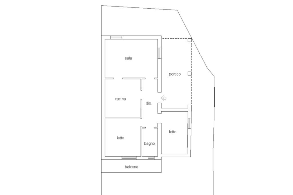
L’abitazione si presenta con un portico coperto in muratura, ampio e accogliente, sostenuto da colonne in mattoncino che richiamano lo stile rustico del luogo. Questo spazio esterno, ideale per pranzi all’aperto o semplicemente per godersi la vista sul paesaggio circostante, introduce fin da subito all’interno della casa, un’aria autentica e familiare.

All’interno, la zona giorno si apre su una cucina abitabile dotata di camino in muratura, elemento che dona calore e carattere all’ambiente, rendendolo il cuore pulsante della casa.

Segue una comoda sala da pranzo o soggiorno, ampia e versatile, perfetta per accogliere amici e familiari, con pavimenti in graniglia che richiamano il gusto autentico delle dimore rurali di campagna.
La zona notte è composta da 2 camere da letto spaziose e ben illuminate, ideali sia come camere matrimoniali che come stanze per ospiti o studio, e da un bagno di comoda metratura, dotato di vasca e finestra.

Gli infissi interni in legno con doppio vetro e le persiane esterne in alluminio garantiscono un buon isolamento termico e acustico, oltre a valorizzare l’estetica complessiva dell’abitazione.

A completare la proprietà vi sono una cantina di 18 mq, perfetta come locale tecnico, deposito o per la conservazione di prodotti tipici, e un garage di circa 30 mq, ideale per vetture o come spazio di lavoro e rimessa.

Il terreno di circa 2.000 mq che circonda la casa offre ampi spazi pianeggianti e leggermente collinari, ideali per realizzare un piccolo uliveto o un orto, godendo di una posizione soleggiata e panoramica.

Questa casa rappresenta una soluzione ideale per chi è alla ricerca di una residenza indipendente in un contesto naturale, perfetta sia come abitazione principale che come casa di villeggiatura per trascorrere momenti di relax lontano dal caos cittadino.
Un rifugio autentico, dove riscoprire il valore del tempo, del silenzio e della semplicità.

Contattaci ora per maggiori informazioni o per prenotare una visita:

Tel: 06 97 20 00 95
Cell: 347 75 48 763

Agli stessi contatti puoi richiedere una valutazione completamente gratuita e senza impegno della tua casa.

Mostra tutto

Nelle vicinanze

Farmacia Farmacia
Farmacia
460 m
Ristoranti Ristoranti
Welcome Area "Da Mozzetta"
2,5 Km
Angolo di Paradiso
2,9 Km
Mostra tutto

Caratteristiche

Rif.:
61130913
Piano:
Basso di 1
Totale piani:
1
Box:
1
Balconi:
1
Camere da letto:
2
Mostra tutto
Prezzo Prezzo
€ 135.000
Rata mutuo Rata mutuo
€ 627 / mese
Proponi il tuo prezzoProponi il tuo prezzo

Classe Energetica

Questo immobile è esente da classe energetica
Anno di costruzione:
1950
Riscaldamento:
Autonomo
Tipo impianto:
A radiatori
Tipo alimentazione:
Metano

Ti interessa visionare l'immobile?

Fissa un appuntamento  Fissa un appuntamento

Richiedi informazioni

Clicca su Leggi per aprire l'informativa
* Questi campi sono obbligatori

Calcola il tuo mutuo

Semplice e senza impegno
Anticipo

( % )
Mutuo

( % )

pochi semplici passi

inserisci i tuoi dati
Questionario completato
Grazie per aver richiesto un appuntamento senza impegno con un nostro Consulente del Credito e Assicurativo.

Hai inserito correttamente tutti i dati necessari e a breve riceverai una e-mail con un link da convalidare per inviare i tuoi dati.
Affiliato
Punto Mediazioni Srlu
Corso Filippo Turati, 92/94 00034 Colleferro (RM)
Corso Filippo Turati, 92/94 00034 Colleferro (RM)
Zona: Colleferro - Segni
Mostra su mappa
Orari: Dal lunedì al sabato 8.30 - 13.00 / 16.00 - 20.00
Affiliato
Punto Mediazioni Srlu
Corso Filippo Turati, 92/94 00034 Colleferro (RM)

2026 Tecnocasa Franchising S.p.A. - P. IVA 08365160152 - Via Monte Bianco 60/A 20089 Rozzano (MI). Ogni agenzia ha un proprio titolare ed è autonoma. Privacy policy | Policy utilizzo | Cookie policy