Quadrilocale in vendita

Colleferro, Via della Selva
€ 64.000
4 locali 4 locali
85 Mq 85 Mq
1 bagno 1 bagno

Quadrilocale in vendita

Colleferro, Via della Selva

Descrizione annuncio

Cerchi una casa da personalizzare e trasformare nel tuo rifugio ideale?


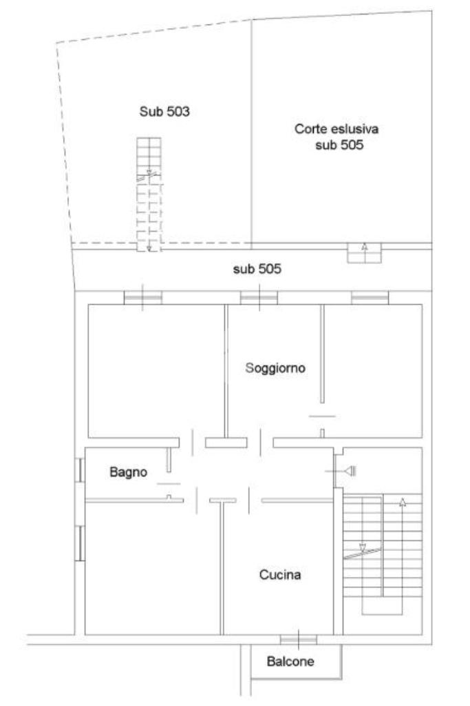
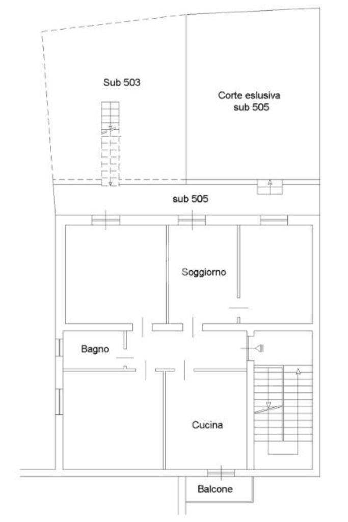
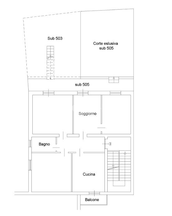
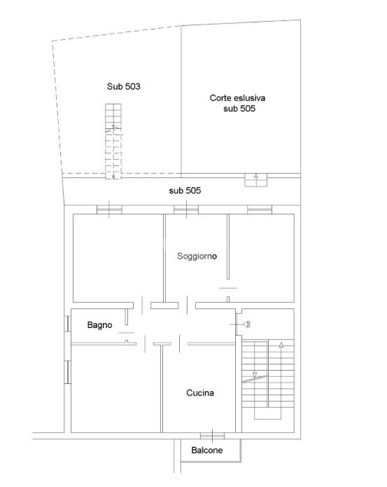
In Via della Selva, a Colleferro, in una zona tranquilla ma vicina a tutti i principali servizi, proponiamo in vendita un appartamento di circa 85 mq situato al primo piano di una piccola palazzina.

L’immobile si presenta completamente da ristrutturare, offrendo così la rara opportunità di dare vita a un’abitazione su misura, progettata secondo il proprio stile e le proprie esigenze.
La distribuzione interna comprende un ampio soggiorno, una cucina separata, due camere da letto, un bagno, un corridoio funzionale e un balcone che dona luce naturale agli ambienti.

A rendere questa proposta ancora più interessante è la presenza di una corte esterna privata, uno spazio verde ideale per chi desidera un angolo di tranquillità dove rilassarsi all’aperto o ricevere amici e familiari durante la bella stagione.

Grazie agli spazi ampi e versatili, l’appartamento offre un grande potenziale di trasformazione: immaginate una zona giorno moderna e luminosa, una cucina open space, un bagno dal design contemporaneo e camere accoglienti dove respirare comfort e serenità.

La posizione, strategica e ben collegata, consente di raggiungere in pochi minuti i servizi principali, vie di comunicazione, mantenendo al contempo la pace di una zona residenziale riservata.

Un’occasione ideale per chi sogna di creare la propria casa partendo da zero, o per chi desidera investire in un immobile con ottime prospettive di valorizzazione.

Contattaci ora per maggiori informazioni o per prenotare una visita:

Tel: 06 97 20 00 95
Cell: 347 75 48 763

Agli stessi contatti puoi richiedere una valutazione completamente gratuita e senza impegno della tua casa.

Mostra tutto

Nelle vicinanze

Trasporto pubblico Trasporto pubblico
Colleferro-Segni-Paliano
Colleferro-Segni-Paliano
1,8 Km
Colleferro, corso Turati inc v Grandi
Colleferro, corso Turati inc v Grandi
300 m
Ospedale /p.zza Moro
Ospedale /p.zza Moro
440 m
Scuole Scuole
Scuola Primaria "Giovanni Paolo II"
160 m
Scuola Primaria "Dante Alighieri"
410 m
Istituto Comprensivo "Margherita Hack" - Scuola Secondaria di I grado "Leonardo da Vinci"
570 m
Istituto Professionale Industriale "Paolo Parodi Delfino"
690 m
Istituto Comprensivo "Margherita Hack" - Scuola Primaria "Carlo Urbani"
740 m
Farmacia Farmacia
Farmacia
1,2 Km
Farmacia Comunale
2,2 Km
Ospedali Ospedali
Ospedale Leopoldo Parodi Delfino
480 m
Pronto Soccorso Ospedale "Leopoldo Parodi Delfino"
520 m
Supermercati Supermercati
In's Mercato
150 m
Supermercato Conad
640 m
EmmePiù
910 m
Conad
1,3 Km
Negozi Negozi
Liguori
260 m
Ristoranti Ristoranti
La fontanina
1,3 Km
Ristorante Muraccio di Sant'Antonio
2,0 Km
La Tenuta di Bacco
2,2 Km
Yujo
2,2 Km
The Club 1
2,2 Km
Mostra tutto

Caratteristiche

Rif.:
61133013
Piano:
1 di 3 (Piano basso)
Balconi:
1
Camere da letto:
2
Arredamento:
Assente
Condizionamento:
Predisposizione impianto
Mostra tutto
Prezzo Prezzo
€ 64.000
Rata mutuo Rata mutuo
€ 295 / mese
Spese annue Spese annue
€ 0
Proponi il tuo prezzoProponi il tuo prezzo

Classe Energetica

Questo immobile è esente da classe energetica
Anno di costruzione:
1966
Riscaldamento:
Autonomo
Tipo impianto:
A radiatori
Tipo alimentazione:
Metano

Ti interessa visionare l'immobile?

Fissa un appuntamento  Fissa un appuntamento

Richiedi informazioni

* Questi campi sono obbligatori

Calcola il tuo mutuo

Semplice e senza impegno
Anticipo

( % )
Mutuo

( % )

pochi semplici passi

inserisci i tuoi dati
Questionario completato
Grazie per aver richiesto un appuntamento senza impegno con un nostro Consulente del Credito e Assicurativo.

Hai inserito correttamente tutti i dati necessari e a breve riceverai una e-mail con un link da convalidare per inviare i tuoi dati.
Affiliato
Punto Mediazioni Srlu
Corso Filippo Turati, 92/94 00034 Colleferro (RM)

Il nostro staff


  • Fabrizio Cristini
    Responsabile
Corso Filippo Turati, 92/94 00034 Colleferro (RM)
Zona: Colleferro - Segni
Mostra su mappa
Orari: Dal lunedì al sabato 8.30 - 13.00 / 16.00 - 20.00
Affiliato
Punto Mediazioni Srlu
Corso Filippo Turati, 92/94 00034 Colleferro (RM)

2025 Tecnocasa Franchising S.p.A. - P. IVA 08365160152 - Via Monte Bianco 60/A 20089 Rozzano (MI). Ogni agenzia ha un proprio titolare ed è autonoma. Privacy policy | Policy utilizzo | Cookie policy