6 locali in vendita

Colleferro, Via XXIV Maggio
€ 190.000
5 locali 5 locali
168 Mq 168 Mq
2 bagni 2 bagni

6 locali in vendita

Colleferro, Via XXIV Maggio

Descrizione annuncio

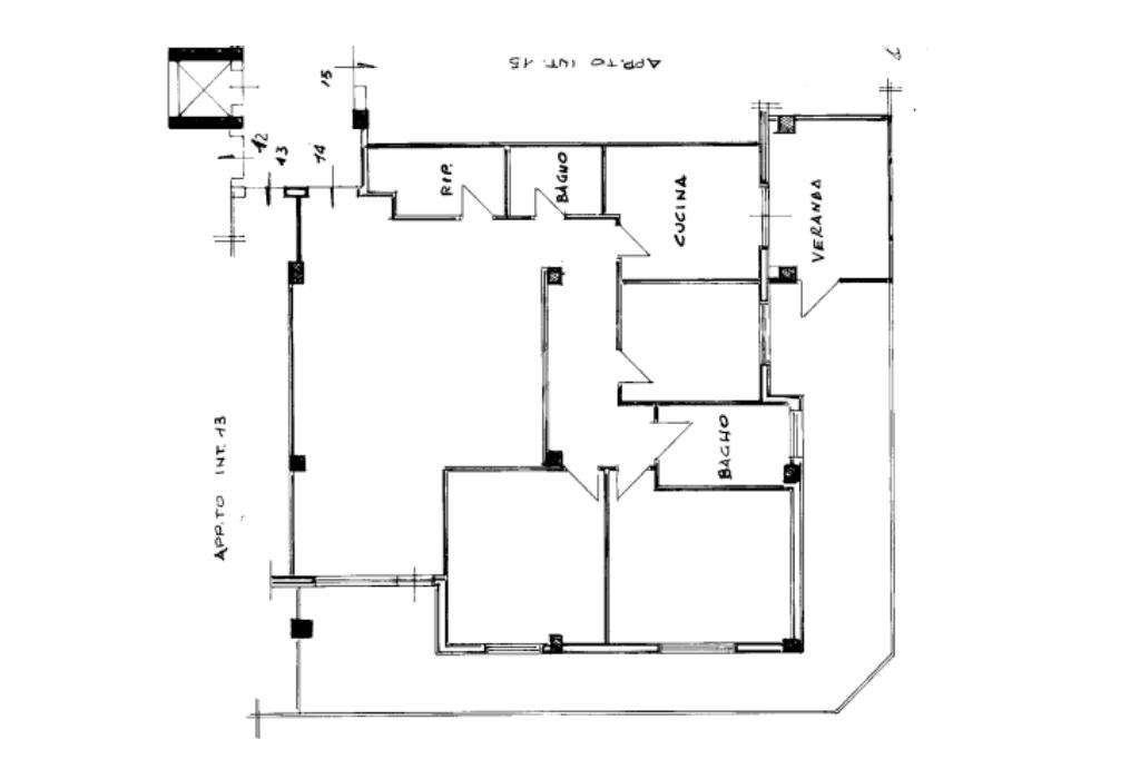
Luminoso appartamento di ampia metratura con esposizione nord-est. Terzo piano con ascensore

In una delle vie più centrali e richieste di Colleferro, all’interno di una palazzina dotata di ascensore, proponiamo in vendita un elegante appartamento posto al terzo piano, dalla superficie complessiva di 168mq ca, distribuiti tra ambienti interni e generose superfici esterne.

Varcata la soglia, l’ingresso introduce ad un soggiorno di rappresentanza. Questo, impreziosito dalla luce naturale, si affaccia direttamente su un ampio terrazzo perimetrale, ideale per accogliere ospiti o vivere momenti di tranquillità.

La cucina abitabile, separata e funzionale, è arricchita dalla presenza di una veranda chiusa da considerare come rifugio di luce dove gustare lente colazioni oppure come area lettura nel corso della giornata.

Posizionati in prossimità della zona giorno: un bagno di servizio – pratico e discreto - e un comodo ripostiglio utile per garantire ordine e organizzazione dell’intero appartamento. Entrambi non dotati di finestra.

Il corridoio coniuga le zone principali dell’appartamento. Si passa dalla convivialità alla privacy grazie alla camera matrimoniale e alle due camere da letto perfette per ospitare cari, creare uno studio o spazi polifunzionali.

Accessibile da tutte le camere e per l’intera area, è stato pensato un secondo bagno finestrato dotato di vasca.

La posizione centrale rende questa proprietĂ  particolarmente attrattiva, con tutti i servizi principali a pochi passi, offrendo la comoditĂ  di un contesto urbano senza compromessi.

Non perdere l’opportunità di vivere in un appartamento che rappresenta l’unione perfetta tra eleganza e funzionalità, ma che si presta a modifiche e personalizzazioni, permettendo di modellare ogni angolo secondo il tuo stile e le tue esigenze

Per maggiori informazioni e per prendere un appuntamento contattaci.

Tel: 06 97 20 00 95

Cell: 347 75 48 763

Agli stessi contatti puoi richiedere una valutazione completamente gratuita e senza impegno della tua casa.

Mostra tutto

Nelle vicinanze

Trasporto pubblico Trasporto pubblico
Colleferro-Segni-Paliano
Colleferro-Segni-Paliano
1,6 Km
Colleferro, v Latina inc vle Europa
Colleferro, v Latina inc vle Europa
300 m
COLLEFERRO IST (Cannizzaro)
COLLEFERRO IST (Cannizzaro)
470 m
Scuole Scuole
Istituto Comprensivo "Margherita Hack" - Scuola Primaria "Carlo Urbani"
250 m
Istituto Comprensivo "Margherita Hack" - Scuola Secondaria di I grado "Leonardo da Vinci"
370 m
Istituto Comprensivo "Margherita Hack" - Scuola Primaria "Gerardo Parodi Delfino"
490 m
Istituto Tecnico Industriale "Stanislao Cannizzaro"
510 m
Scuola Primaria "Dante Alighieri"
550 m
Farmacia Farmacia
Farmacia
300 m
Farmacia Comunale
1,9 Km
Ospedali Ospedali
Ospedale Leopoldo Parodi Delfino
640 m
Pronto Soccorso Ospedale "Leopoldo Parodi Delfino"
680 m
Supermercati Supermercati
Conad
400 m
EmmePiĂš
440 m
Supermercato Conad
640 m
In's Mercato
780 m
Negozi Negozi
Liguori
1,2 Km
Ristoranti Ristoranti
La fontanina
420 m
La Tenuta di Bacco
1,9 Km
Yujo
1,9 Km
The Club 1
2,1 Km
Ristorante Pizzeria La Locanda Del Parco
2,3 Km
Mostra tutto

Caratteristiche

Rif.:
61100901
Piano:
3 di 4 con ascensore (Piano alto)
Terrazzi:
1
Camere da letto:
3
Arredamento:
Assente
Condizionamento:
Autonomo
Mostra tutto
Prezzo Prezzo
€ 190.000
Rata mutuo Rata mutuo
€ 897 / mese
Proponi il tuo prezzoProponi il tuo prezzo

Classe Energetica

Questo immobile è esente da classe energetica
Anno di costruzione:
1975
Riscaldamento:
Autonomo
Tipo impianto:
A radiatori
Tipo alimentazione:
Metano

Ti interessa visionare l'immobile?

Fissa un appuntamento  Fissa un appuntamento

Richiedi informazioni

Clicca su Leggi per aprire l'informativa
* Questi campi sono obbligatori

Calcola il tuo mutuo

Semplice e senza impegno
Anticipo

( % )
Mutuo

( % )

pochi semplici passi

inserisci i tuoi dati
Questionario completato
Grazie per aver richiesto un appuntamento senza impegno con un nostro Consulente del Credito e Assicurativo.

Hai inserito correttamente tutti i dati necessari e a breve riceverai una e-mail con un link da convalidare per inviare i tuoi dati.
Affiliato
Punto Mediazioni Srlu
Corso Filippo Turati, 92/94 00034 Colleferro (RM)

Il nostro staff


  • Fabrizio Cristini
    Responsabile
Corso Filippo Turati, 92/94 00034 Colleferro (RM)
Zona: Colleferro - Segni
Mostra su mappa
Orari: Dal lunedĂŹ al sabato 8.30 - 13.00 / 16.00 - 20.00
Affiliato
Punto Mediazioni Srlu
Corso Filippo Turati, 92/94 00034 Colleferro (RM)

2025 Tecnocasa Franchising S.p.A. - P. IVA 08365160152 - Via Monte Bianco 60/A 20089 Rozzano (MI). Ogni agenzia ha un proprio titolare ed è autonoma. Privacy policy | Policy utilizzo | Cookie policy