Quadrilocale in affitto

Colleferro, Via Aprilia
€ 600 / mese
Prezzo aggiornato
4 locali 4 locali
65 Mq 65 Mq
1 bagno 1 bagno

Quadrilocale in affitto

Colleferro, Via Aprilia

Descrizione annuncio

Colleferro - Via Aprilia

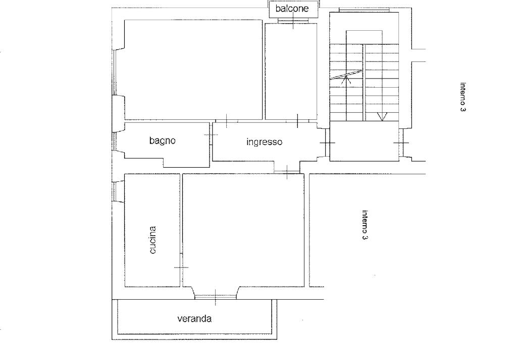
In posizione centrale, nel cuore di Colleferro, e più precisamente in via Aprilia, proponiamo un grazioso appartamento situato al secondo piano di una palazzina senza ascensore. Una soluzione ideale per chi desidera vivere la comodità del centro, con tutti i principali servizi a pochi passi, senza rinunciare alla tranquillità di un contesto curato e ben tenuto.

L’ingresso si apre su un corridoio che distribuisce in modo armonioso e funzionale i vari ambienti della casa, garantendo un’ottima organizzazione degli spazi. Il soggiorno, luminoso e accogliente, rappresenta il cuore dell’abitazione ed è arricchito dalla presenza di una veranda, perfetta come angolo relax da vivere in ogni stagione. La cucina, raccolta ma ben strutturata, è pensata per offrire praticità e comfort nella quotidianità.

La zona notte si compone di ambienti ben proporzionati e confortevoli: una camera matrimoniale spaziosa, ideale per assicurare riposo e tranquillità; una cameretta luminosa con accesso diretto a un grazioso balconcino, che regala uno sfogo esterno riservato; e un bagno finestrato, valorizzato dalla luce naturale che rende l’ambiente fresco e piacevolmente arioso.

Completa la proprietà un comodo posto auto coperto, un valore aggiunto fondamentale per chi sceglie di vivere in centro e desidera la massima comodità negli spostamenti quotidiani.

La soluzione è perfetta per giovani coppie o piccole famiglie alla ricerca di un’abitazione funzionale e ben distribuita, in una delle zone più servite della città. È ideale anche per chi deve spostarsi frequentemente, grazie alla vicinanza della stazione di Colleferro-Segni-Paliano, a soli 1 km, che permette di raggiungere comodamente Roma in treno.

Contattaci ora per maggiori informazioni o per prenotare una visita:

Tel: 06 97 20 00 95
Cell: 347 75 48 763

Agli stessi contatti puoi richiedere una valutazione completamente gratuita e senza impegno della tua casa.

Mostra tutto

Nelle vicinanze

Trasporto pubblico Trasporto pubblico
Colleferro-Segni-Paliano
Colleferro-Segni-Paliano
1,0 Km
c.so Garibaldi
c.so Garibaldi
180 m
Colleferro (Via degli Esplosivi)
Colleferro (Via degli Esplosivi)
470 m
Scuole Scuole
Istituto Comprensivo "Margherita Hack" - Scuola Primaria "Gerardo Parodi Delfino"
320 m
Istituto Comprensivo "Margherita Hack" - Scuola Primaria "Carlo Urbani"
490 m
Istituto Professionale Industriale "Paolo Parodi Delfino"
510 m
Istituto Comprensivo "Margherita Hack" - Scuola Secondaria di I grado "Leonardo da Vinci"
760 m
Scuola Primaria "Dante Alighieri"
910 m
Farmacia Farmacia
Farmacia
640 m
Farmacia Comunale
1,3 Km
Ospedali Ospedali
Pronto Soccorso Ospedale "Leopoldo Parodi Delfino"
650 m
Ospedale Leopoldo Parodi Delfino
670 m
Supermercati Supermercati
Supermercato Conad
540 m
Conad
620 m
EmmePiù
1,0 Km
In's Mercato
1,0 Km
Negozi Negozi
Liguori
1,3 Km
Ristoranti Ristoranti
La fontanina
680 m
La Tenuta di Bacco
1,3 Km
Yujo
1,4 Km
The Club 1
1,5 Km
Ristorante Pizzeria La Locanda Del Parco
1,7 Km
Mostra tutto

Caratteristiche

Rif.:
61180663
Piano:
2 di 3 (Piano medio)
Posti auto:
1
Balconi:
2
Camere da letto:
2
Arredamento:
Completo
Mostra tutto
Prezzo Prezzo
€ 600 / mese
Spese annue Spese annue
€ 240

Classe Energetica

Questo immobile è esente da classe energetica
Anno di costruzione:
1980
Riscaldamento:
Autonomo
Tipo impianto:
A radiatori
Tipo alimentazione:
Metano

Prezzo ridotto di €1 (8%%)

Ti interessa visionare l'immobile?

Fissa un appuntamento  Fissa un appuntamento

Richiedi informazioni

Clicca su Leggi per aprire l'informativa
* Questi campi sono obbligatori
Affiliato
Punto Mediazioni Srlu
Corso Filippo Turati, 92/94 00034 Colleferro (RM)
Corso Filippo Turati, 92/94 00034 Colleferro (RM)
Zona: Colleferro - Segni
Mostra su mappa
Orari: Dal lunedì al sabato 8.30 - 13.00 / 16.00 - 20.00
Affiliato
Punto Mediazioni Srlu
Corso Filippo Turati, 92/94 00034 Colleferro (RM)

2026 Tecnocasa Franchising S.p.A. - P. IVA 08365160152 - Via Monte Bianco 60/A 20089 Rozzano (MI). Ogni agenzia ha un proprio titolare ed è autonoma. Privacy policy | Policy utilizzo | Cookie policy